
在许多东说念主的刻板印象里,农村建房似乎老是跳不出肥大门楼、贴满瓷砖、里面采光不及的旧框架。可是,跟着审好意思红利的到来,新一代的返乡建房者们,运行把视力投向了光影、当然与酬酢”的深度会通。
真的的家,不应只是钢筋混凝土的堆砌,而是一个能让灵魂开脱呼吸的容器。今天,咱们要共享的这套三层当代新登第别墅,它透顶冲突了传统自建房的压抑感,通过L型围合式院落,将四季模式引入室内。这里既有父老钟爱的接地气院落,也有年青东说念主向往的挑空客厅与家庭影院。
这不仅是一座房子,更是一份对于“向往的生涯”的答卷。 让咱们走进这套筹算,望望它是如何通过精妙的布局,处罚采光难、透风差等传统痛点的。

一、 布局筹算:动静分区,功能满分
{jz:field.toptypename/}这套户型最精妙的所在在于其L型开发布局与内庭院的齐备联接。
一层:酬酢与起居中枢
庭院入户: 进门即是广阔的庭院,这里是自然的隔音障蔽,亦然曝晒、种花的绝佳场地。
双卧筹算: 谈判到家有老东说念主,一层成立了两间卧室。西侧为主卧套房,带悲怆衣帽间和卫生间,尊享奥秘。
洞开式酬酢区: 客厅与大型圆桌餐厅相接,UEDBET中国官方网站配有吧台。这种晴朗的筹算特殊相宜农村过年过节时的亲一又约聚。

二层:奥秘居住与失业
挑空客厅: 二层中心区域鸟瞰一层客厅,增多了空间的延展感。
起居室与茶馆: 除了卧室,二层增设了起居酬酢区和专属茶馆,是家东说念主擅自换取的小六合。

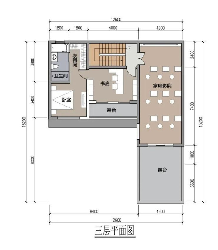
三层:精神生涯领地
豪华影音室: 占据了南侧整块区域,超大空间可容纳专科级家庭影院,慷慨年青一代的文娱需求。
书斋与露台: 悲怆书斋贯串露台,保证了办公和学习时的安详与当然色泽。

三、 呼吸开发:借当然光影,塑流动空间
在农村自建房中,最怕的便是那种“黑房子、闷罐子”。这套户型中枢就在于采光与透风逻辑——让房子不仅能遮风避雨,更能与当然同频呼吸。
1. 270° 环绕采光:全明空间的艺术
开发师运用 L型开发形态 的几何上风,开云让每一个房间皆领有了至少两个维度的受光面。
通透的一层酬酢区: 弘大的落地窗将 8.4 米宽的庭院中意毫无保留地引入室内。清早的阳光洒在 12 东说念主的圆桌上,不仅照亮了餐盘,也叫醒了全家东说念主的好热枕。
三层露台的垂直借光: 顶层的多处大露台(包括南侧与中部的洞开平台),像是一个个“色泽漏斗”,即便在北侧的书斋,也能享受到柔柔而充沛的当然直射光。

2. 挑空客厅:自然的“烟囱效应”
客厅区域斗胆地袭取了 两层挑空筹算。这不单是是为了视觉上的宏伟风格,更是一个精妙的当然空调系统:
热压透风: 运用物理学中的“烟囱效应”,室内的热空气会顺着挑空空间朝上浮动,通过二、三层的窗户排出,而庭院中的寒冷新风则被压入室内,酿成当然的轮回对流。即使在南边闷热的夏季,室内也能保持贯通宜东说念主。
3. 室表里的“空气长廊”
筹算中散播在不同方向的南曙光台、侧边阳台以及顶部露台,组成了参差有致的导风系统。
穿堂风的舒坦: 这种布局确保了空气不再是死水一潭。不管是三层的影音室仍是深处的起居室,独一推开窗,就能感受到来自原野间的阵阵穿堂风。
防潮与除湿: 风雅的透风透顶处罚了农村房屋易湿气发霉的恶疾,保护产品的同期,更看护了家东说念主的呼吸说念健康。

建一座房子,圆一个归家梦。在快节拍的皆市霓虹中穿梭深切,咱们心底最柔嫩的所在,长久留给了旧地那片地皮。这套三层别墅,不单是是一纸精密的开发图纸,更是一份对于离尘不离城的生涯决策。它用当代的开发话语,再行界说了农村自建房的尊荣:老东说念主有暖阳下的庭院,孩子有驱驰的露台,年青东说念主有奥秘的影音六合。
在这里,采光不再是浪费,透风不再是鬈曲。当清早的第一缕阳光透过大落地窗洒在原木色产品上,当微风穿过挑空客厅带走夏季的酷暑,你会发现,所谓的“向往的生涯”,其实就在这砖瓦之间。

备案号: